Beschrijving

Arhnemplein 20 in Almere. Bijzonder ruim gezinshuis met vijf slaapkamers, zonnige tuin en topligging nabij het stadshart van Almere!

Op een unieke plek in Almere, direct aan een rustig en groen plantsoen én op korte afstand van het bruisende stadscentrum, vind je deze royale eengezinswoning met vijf slaapkamers, voor- en achtertuin, én volop mogelijkheden voor (thuis)werken of een groot gezin.

Voortuin en entree:
De woning is gelegen aan het autoluwe en kindvriendelijke Arhnemplein, waar rust en ruimte centraal staan. Via de diepe voortuin waar je kunt genieten van het vrije zicht over het plantsoen, bereik je de voordeur.

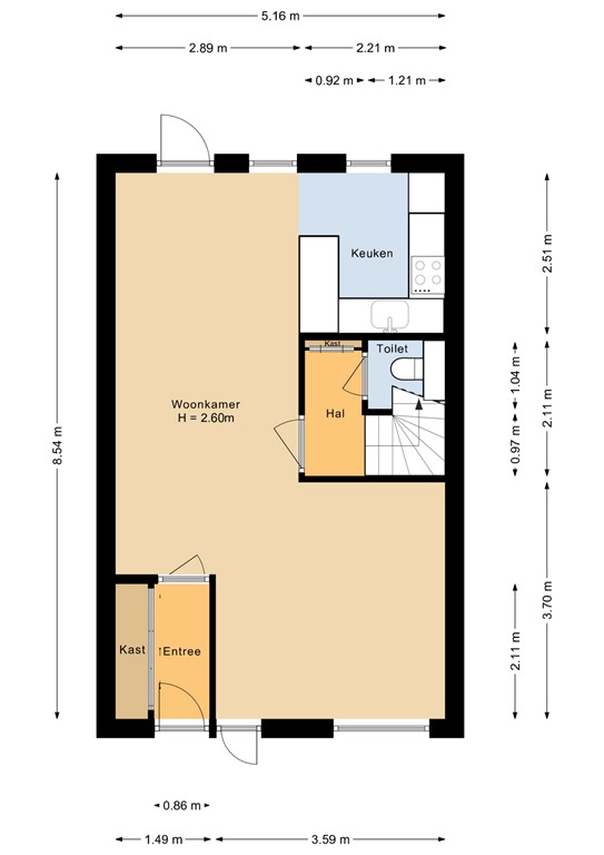
Begane grond:
Je komt binnen in de hal, van waaruit je direct doorloopt naar de ruime woonkamer. De woonkamer is voorzien van een nette tegelvloer en is opvallend licht, mede dankzij de grote raampartijen aan de voorzijde met uitzicht op het plantsoen. Vanuit de woonkamer heb je toegang tot een tweede hal, centraal in de woning gelegen. Deze hal vormt het scheidende element tussen de woonkamer en de open keuken aan de achterzijde, en biedt toegang tot het toilet en de trapopgang naar de eerste verdieping.

Achter in de woning bevindt zich de open keuken, met voldoende ruimte voor een eettafel. De keuken biedt direct toegang tot de achtertuin, gelegen op het noordoosten. Deze tuin beschikt over een praktische stenen berging, ideaal voor fietsen of tuingereedschap.

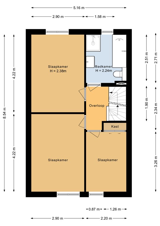
Eerste verdieping:
De overloop op de eerste verdieping biedt toegang tot drie riante slaapkamers. Alle kamers zijn van een prettig formaat. De badkamer is voorzien van een ligbad, aparte douche en een wastafel met meubel, hier begin je je dag in alle rust.

Tweede verdieping:
Op zolder vind je een ruime voorzolder met voldoende ruimte voor een werkplek, hobbyhoek of opbergruimte. Daarnaast zijn hier nog twee riante slaapkamers te vinden, ideaal als kinderkamers, logeerkamers of om te gebruiken als thuiswerkplekken.

Bijzonderheden ligging:
Arhnemplein 20 ligt op een fantastische locatie in Almere. Je woont hier in alle rust aan een autoluw plein, maar tegelijkertijd ben je in slechts enkele minuten in het centrum van Almere Stad. Hier vind je een uitgebreid aanbod aan winkels, horeca, een bioscoop, treinstation en diverse uitgaansgelegenheden. Ook scholen, kinderdagverblijven en sportvoorzieningen liggen op loop- of fietsafstand. De uitvalswegen naar de A6 en A27 zijn uitstekend bereikbaar, waardoor je ook zo in Amsterdam of Utrecht bent.

Samenvattend:
- Riante eengezinswoning met maar liefst vijf slaapkamers
- Zonnepanelen 10 stuks (Huur)
- Kunststof kozijnen 
- Rustige ligging aan een groen, autoluw plantsoen
- Nabij het stadshart van Almere met winkels, horeca en station
- Verzorgde voor- en achtertuin
- Woonkamer met veel lichtinval en vrij uitzicht
- Open keuken met toegang tot de achtertuin (NO)
- Centrale hal met toilet en trapopgang, scheidt woonkamer en keuken
- Steense berging in de achtertuin
- Keurige badkamer met ligbad, douche en wastafelmeubel
- Tweede verdieping met twee slaapkamers en werkruimte
- Zeer centraal gelegen t.o.v. voorzieningen en uitvalswegen

Ben jij op zoek naar een royale gezinswoning op een rustige, maar centrale plek in Almere? Dan is Arhnemplein 20 absoluut het bekijken waard. Maak snel een afspraak – we laten je deze woning graag zien!

Kenmerken