Beschrijving

Staat Makelaars biedt aan Anna Maria van Schurmanlaan 84. Een strak afgewerkt, duurzaam en helemaal instapklare woning.

Welkom bij deze sfeervolle en energiezuinige woning aan de Anna Maria van Schurmanlaan 84. Een modern afgewerkte eengezinswoning waar comfort, ruimte en slimme keuzes naadloos samenkomen. De huidige bewoners hebben bij binnenkomst bewust gekozen voor een verkorte hal, zodat er extra leefruimte is ontstaan in de woonkamer en eetkamer. Een subtiel detail dat direct voelbaar is wanneer je binnenstapt.

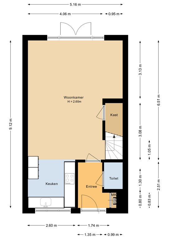
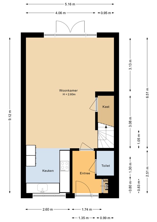
Begane grond:
Via de hal voorzien van meterkast en toilet loop je door naar de lichte woonkamer. Hier vind je onder de trap een praktische berging met de warmtepomp en de omvormer voor de 11 zonnepanelen op het dak. De strakke PVC-vloer met vloerverwarming loopt door over de hele verdieping en geeft de ruimte een moderne, rustige uitstraling.

Aan de voorzijde bevindt zich de volledige keuken, uitgevoerd met een stijlvol werkblad en uitgerust met hoogwaardige Bosch-apparatuur. Denk aan een inductiekookplaat met geïntegreerde afzuiging, een vaatwasser, een stoomoven, een combi-oven en een ruime koel en vriezer. 

Vanuit de keuken kijk je uit over je eigen parkeerplek wel zo praktisch. Aan de achterzijde zorgen de dubbele openslaande deuren voor veel lichtinval én een fijne verbinding met de tuin. De achtertuin, gelegen op het zuidoosten, is netjes aangelegd met sierbestrating, plantenbakken en een houten berging met achterom. Ideaal voor fietsers of tuinliefhebbers. Tevens is de achtertuin voorzien van een elektrisch zonnescherm.

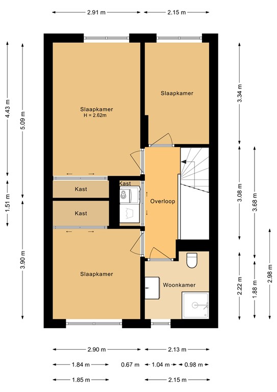
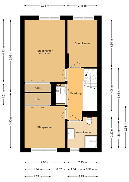
Eerste verdieping:
De eerste verdieping biedt drie keurig afgewerkte slaapkamers: twee aan de achterzijde en één aan de voorzijde. De vloer is overal doorgelegd, waardoor er een mooie eenheid ontstaat.

Centraal op de verdieping vind je een handige technische/wasruimte met de WTW-installatie én aansluitingen voor wasmachine en droger. Slim én ruimtebesparend.

Aan de voorzijde liggen de derde slaapkamer en de badkamer. De badkamer is modern afgewerkt met een inloopdouche, eigentijds tegelwerk, een stijlvol wastafelmeubel en een toilet. Ook hier is vloerverwarming aanwezig. Op de volledige verdieping zijn de temperatuurzones per kamer afzonderlijk in te stellen. In twee kamers zijn er keurige inbouwkasten aanwezig.

Bijzonderheden:
- Ligging is uitermate geschikt
- Vloerverwarming, zonnepanelen en een warmtepomp
- Keurige keuken met alle inbouwapparatuur
- 11 zonnepanelen
- Wanden en plafond zijn keurig afgewerkt
- VVE kosten € 65,- per maand

Ligging:
De woning ligt in het jonge, rustige en kindvriendelijke deel van Oosterwolt, waar groen, ruimte en wooncomfort hand in hand gaan. In de wijk vind je diverse speelplekken, wandelpaden en brede straten met voldoende parkeergelegenheid. Voor de dagelijkse voorzieningen kun je terecht in de nabije winkelcentra, terwijl scholen, sportvelden en kinderopvang binnen enkele minuten bereikbaar zijn. De uitvalswegen richting onder andere Zwolle en Kampen liggen om de hoek, waardoor je zowel met de auto als fiets uitstekend uit de voeten kunt. Kortom: een heerlijke woonomgeving met alles binnen handbereik.

Kenmerken